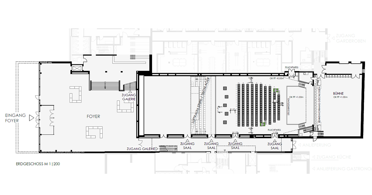
MULTIFUNKTIONALITÄT
Das Kulturhaus Auf der Freiheit ist in besonderer Weise multifunktional. Es bietet Raum für eine Vielzahl verschiedener Kulturveranstaltungen sowie gesellschaftliche Veranstaltungen wie z.B. Schulabschluss- und Ballveranstaltungen. Insgesamt neun unterschiedliche Bestuhlungsvarianten mit fahrbarer Teleskoptribüne ermöglichen individuelle räumliche Inszenierungen. Der Orchestergraben mit Hubpodien bietet große Variabilität in der Bühnengestaltung. In dem vom Kulturhaus nicht benötigten Raum im südlichen Gebäudekomplex wird eine Gastronomie mit 120 Innen- und 100 Außenplätzen mit Blick auf die Schlei realisiert.
Der Sanierungsumbau des ehemaligen Bundeswehr-Mannschaftsheims zum multifunktionalen Kulturhaus Auf der Freiheit ist erforderlich, um für das Schleswig-Holsteinische Landestheater, das städtische Heimat-Kulturprogramm sowie die lokale und regionale Kultur für Schleswig und die Region einen neuen Kulturort zu schaffen. Das Schleswiger Kulturhaus wird darüber hinaus der Ort sein, an dem gesellschaftliche Veranstaltungen wie Abiturbälle und sonstige Festveranstaltungen stattfinden können.



